Slideshow Image 1 Slideshow Image 2 Slideshow Image 3 Slideshow Image 4

Shimado Residence

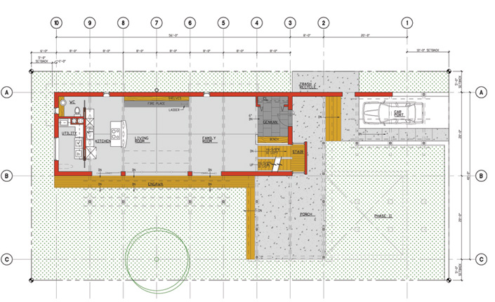
A new sustainable house designed per LEED for Homes standards on a typical 50’ x 100’ city lot in SE Portland. The clients requested a modern 2,200 s.f. 3 bedroom, 2-1/2 bath house that incorporated a multitude of sustainable features into an efficient floor plan that would still feel spacious and have a seamless connection to the outdoors.

The design oriented the long side of the house due south to achieve thermal gain during the winter while providing a variety of sliding screens and overhangs to mitigate the mid summer sun. The mass of the house, constructed from insulated concrete forms, is pushed to the north property line of the site which opens up the south side of the site as a courtyard garden space. An open air front porch bisects the main volume of the house, enclosing the public side of the courtyard, and providing a screen from the street. Below the concrete porch, a 6,000 gallon cistern collects all the rainwater from the roof. The water will be piped back into the house for re-use after being treated by a UV filter.

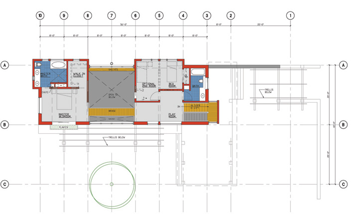
Inside, the first floor plan is open for the full length of the house. Spatially, a central two story, vaulted living room creates the center of the house. This central space opens directly to the enclosed south facing courtyard with a 12’ wide rolling overhead door flanked by two 6’ wide sliding doors and topped by a bank of operable windows. A bathroom and laundry core is delegated to the space beyond the kitchen and screened with sliding floor to ceiling pocket doors. Upstairs the plan is separated into a master suite and a children’s bedroom suite on either side of the central space. The master suite is accessed by a thin steel bridge which spans the vaulted living room below.

Heating and cooling is provided by a combination of passive solar design and active energy efficient systems in a highly insulated building envelope. A concrete slab on grade with hydronic in floor tubes and an on demand water heater heats the main floor. The concrete slab on grade, separated from the ground by 3” of rigid insulation, also provides a thermal mass for the banks of south facing windows. The second floor is serviced by high efficiency air source heat pumps for heating and cooling. Individual rooms have their own fan coil units which obviate the need for ductwork. Heat recovery ventilators and a whole house air filter round out the mechanical systems while a future 3 KW PV array is planned for the south facing roof to offset electricity use.

About Erez Russo Architect, PC

This is where the about information will appear

Contact Erez Russo Architect, PC

This is where the contact information will appear

News & Press

This is where the contact information will appear